 
        
        
      
    
    Husene
Bæredygtige, energivenlige, moderne rumlige kvaliteter uden spildplads og gangarealer.
GENERELT FOR SAMTLIGE HUSE FRA ONEROOM ER, at hustyperne der vises på de kommende sider, skal ses som ideer til indretning, idet vi tegner husene i et samarbejde med jer, hvor behov, ønsker, grund og beliggenhed er de parametre vi tager udgangspunkt i.
Fra første indledende møde, gennem processen med skisering, materiale valg og prissætning, vil I blive fulgt og vejledt af en arkitekt fra tegnestuen.
Vi introducerer ligeledes den entreprenør der skal opføre huset. Denne vil på et tidligt tidspunkt medvirke i møder, hvor priser, materialer og byggeproces gennemgås.
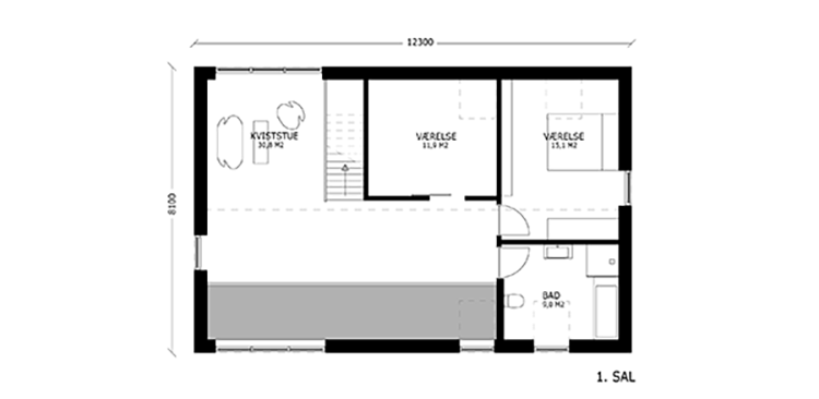
1½ plan
155 - 240 m2
oneroom-compact er et hus med stor rummelighed, hvor der er optimal visuel kontakt mellem etagerne.
De viste planer og størrelser er blot variationer og eksempler på hvordan planerne kan udformes og husene kan indrettes.
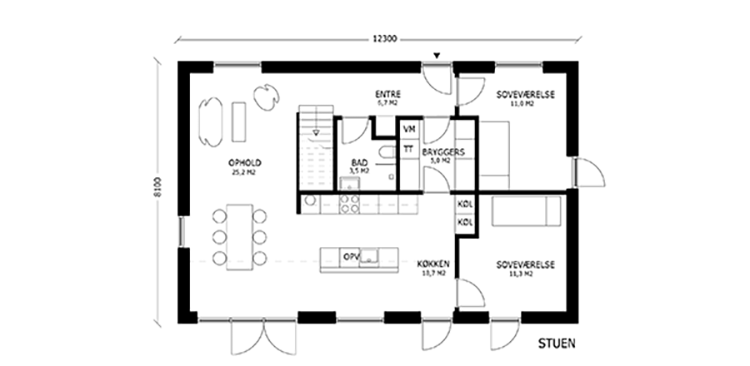
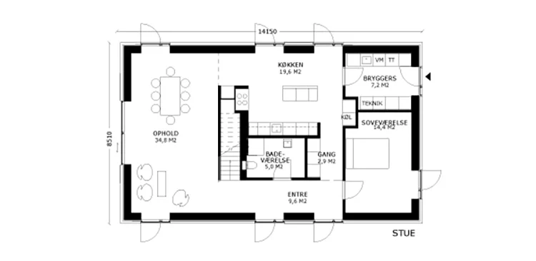
EKSEMPEL 175 M2
EKSEMPEL 185 m2
EKSEMPEL 195 m2 V1
EKSEMPEL 195 M2 V2
EKSEMPEL 240 M2
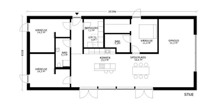
1 PLAN
165 - 200 m2
oneroom-one husene er som udgangspunkt i et plan. Den mulige ekstra højde i husene, har vi udnyttet til hemse, hvor dette giver god mening. Hvis det er muligt at opføre huset med udnyttet tagetage kan dette give yderligere muligheder for udnyttelse af huset.
De viste planer er blot eksempler på hvordan oneroom-one huset kan indrettes og udnyttes, vi tegner indretningen og finder de rigtige løsninger sammen med jer.
Eksempel 165 m2
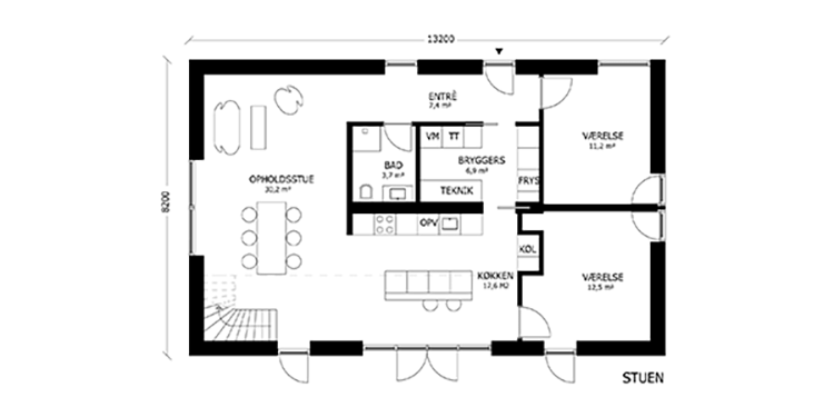
EKSEMPEL 175 m2
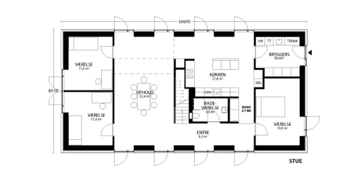
EKSEMPEL 190 m2
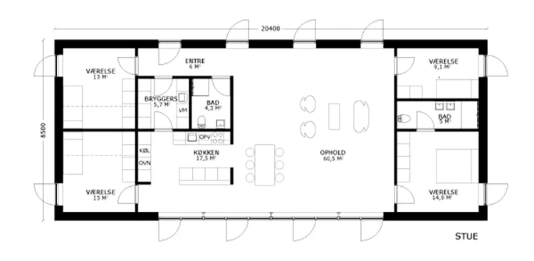
EKSEMPEL 200 m2
INDIVIDUEL
oneroom individuel er for dig der der har helt specifikke ønsker til design og rådgivning i forbindelse med at bygge nyt hus.
Vi tegner naturligvis også huse med et helt andet udtryk og udformning end vore oneroom huse. I den forbindelse skal i blot kontakte os på hovednummeret 28 88 98 98 for en uforpligtende samtale om det forestående projekt.
Vi satser fuldt ud på den den grønne linje, med bæredygtige og energi rigtige huse.
Individuelle i deres formsprog og indretning. Med minimering af spildplads og gangarealer, super gode og moderne huse.
Også disse huse bygges med fast entreprenør over hele landet.
Centralrums huset 170
City / Byhuset 160
Compact huset. 176 / 200
Atriumhuset 200 / 215 + 17 atriumgård
Compact og Symmetrisk 175
Vinkelhus 195
Længehus 185
Villa i Hvidovre 2023
Villa i Hvidovre med facade og tag i Stålplader, super skarpt.
Villa i Højbjerg ved Aarhus. 2020
Forslag til ny villa i Højbjerg ved Aarhus. Huset er tilpasset et kuperet terræn og er stadig under udarbejdelse.
oneroom ONE fladt tag og med forskudt plan.
Et bud på en nytolkning af vores ONE hus, med flat tag og evt. pudsede facader.
Det flydende rum, byens rum. Rummet mellem husene bruges til ophold / Fællesarealer som køkken, spise, arbejde, stue m.m Planen skal ses som inspiration og ide´ til, hvordan huset kan disponeres. Der er ingen grænser......
Villa med forskudt tagplan til Lillerød. Huset er under skitsering og er ikke helt på plads. Ønsket om højt siddende vinduer i taget, skal ses i forhold til dels placering, nærhed til vej og verdenshjørner.
 
             
             
             
             
             
             
             
             
             
             
             
             
             
             
             
             
             
             
             
             
             
             
             
             
             
             
             
             
             
             
             
             
             
             
             
             
             
             
             
             
             
             
             
             
             
             
             
             
             
             
             
             
             
             
             
             
             
             
             
             
             
            